Share |

Nuova casa di riposo a Trecate

Al via i lavori per la struttura tra via Po e via Arno

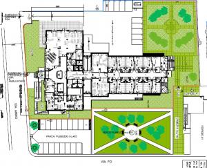
Trecate - Un cantiere importante per la città: hanno preso il via i lavori per la costruzione della nuova casa di riposo di Trecate. La struttura sorgerà nell'isolato fra via Po e via Arno e sarà in grado di ospitare 86 persone. La futura residenza “Il Melograno” sarà una rsa, accreditata presso il servizio sanitario e dedicata a soggetti non autosufficienti, che necessitano quindi di un elevato livello di assistenza. «Si tratta di un'opera importante – commenta l'assessore all'urbanistica, Giancarlo Rosina – il cui iter per la realizzazione è iniziato due anni fa. Accogliamo, inoltre, con favore la notizia che il numero dei posti disponibili è salito a 86, rispetto ai circa 60 previsti inizialmente. La nuova struttura svolgerà un servizio fondamentale per la cura degli anziani e per le loro famiglie. Un ulteriore valore aggiunto è rappresentato dal fatto che la nuova casa di riposo sorge su un'area industriale dismessa, che viene così recuperata e restituita alla collettività». La residenza sarà composta da un edificio di quattro piani, sarà dotata di un giardino privato e di un posteggio interno e ospiterà anche tre ambulatori specialistici. Inoltre, gli oneri di urbanizzazione prevedono anche la realizzazione di un posteggio pubblico e di un nuovo parco, che sorgeranno su via Po. Il termine dei lavori è previsto entro il 2017.